Facetlaan 15, 2665 NR Bleiswijk
Omschrijving
Te huur bedrijfsruimte
Facetlaan 15, 2665 NR Bleiswijk
ALGEMEEN
Op een strategische locatie aan de Facetlaan in Bleiswijk, op bedrijvenpark "Prisma", is deze bedrijfsruimte beschikbaar voor verhuur. Dit moderne pand maakt deel uit van het project 'De Jade fase 2', bestaande uit 27 hoogwaardige bedrijfsruimten. De unit heeft een oppervlakte van circa 200 m² op de begane grond en is gelegen op een goed bereikbare en zichtbare locatie, nabij de A12 en A20.
Bedrijvenpark "Prisma" ligt in Bleiswijk (gemeente Lansingerland), midden in de Randstad en prima ontsloten. De vier grootste steden van Nederland zijn eenvoudig te bereiken. De afslag A12 (Den Haag _ Utrecht) ligt op korte afstand van de toegang tot het bedrijvenpark en dus ook van onze projectlocatie. Middels treinstation Bleizo (Bleiswijk/Zoetermeer) is de Facetlaan 15 uitstekend bereikbaar met het openbaar vervoer. Op Bedrijvenpark "Prisma" zijn onder andere Hoogvliet (dc), Aldi (bakkerij), Concave, wasstraat H2O en Drake & Farrell gevestigd. Op korte afstand treft u bovendien een tankstation en vestigingen van McDonalds en KFC aan.
KADASTRALE GEGEVENS
Gemeente : Bleiswijk
Sectie : A
Nummer : 1471 A25 (ontstaan uit 1547)
Bouwjaar : 2020.
BESTEMMING
De bestemming van de Facetlaan 15 is 'Bedrijventerrein'.
Bestemmingsplan : Hoefweg-Noord (prisma)
Planstatus : Vastgesteld op 18 juli 2013
Overheid : Gemeente Lansingerland
Categorie : Bedrijf tot en met categorie 3.1
Enkelbestemming : Bedrijventerrein
INDELING + OPLEVERINGSNIVEAU
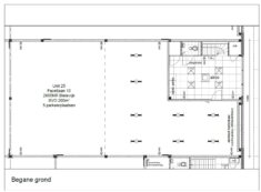
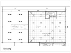
De Facetlaan 15 heeft een totale oppervlakte van ca. 317 m² bvo als volgt onderverdeeld:
Begane grond : ca. 200 m² bvo bedrijfsruimte
Eerste verdieping : ca. 117 m² bvo bedrijfsruimte, thans ingericht als kantoor
Bij het gehuurde behoren 5 eigen parkeerplaatsen.
Het object wordt opgeleverd met onder andere de volgende voorzieningen:
Bedrijfsruimte
- 5 parkeerplaatsen
- gevlinderde betonvloer 1.000kg/m²
- elektrisch bedienbare overheaddeur
- goede vloer, gevel en dakisolatie
- isolerende beglazing
- aluminium kozijnen
- betegeld toilet
- systeemplafond entree
- LED armaturen
- meterkastinrichting
Verdieping
- systeemplafond + LED armaturen
- pantry
- WCD + UTP aansluitingen verdeeld over de ruimte
- 2 airco units voor het verwarmen en koelen van de ruimte
- betonnen verdiepingsvloer belasting 500 kg/m²
HUURCONDITIES
Huurprijs : € 45.000,- per jaar excl. BTW
Huurtermijn : in overleg
Huuringangsdatum : in overleg
Huurprijsindexatie : de huurprijs wordt jaarlijks geïndexeerd op basis van het Consumenten Prijsindexcijfer (CPI), reeks Alle huishoudens (2015=100) van het CBS. Voor het eerst een jaar na de huuringangsdatum
Huurprijsbetaling : per maand vooruit
Servicekosten: de servicekosten bedragen € 420,- per jaar excl. BTW als voorschot voor de kosten van:
- schoonmaak en diensten, verzorgd door de VvE
- onderhoudswerkzaamheden, verzorgd door de VvE
Huurder dient zelf contracten af te sluiten met de nutsbedrijven inzake de levering van water en elektra
Bankgarantie : gelijk aan 3 maanden huur + 3 maanden servicekosten + BTW
Voorbehoud : goedkeuring directie verhuurder/ positief bedrijfsinformatierapport; ter beoordeling van verhuurder.
Contract : model door de Raad voor Onroerende Zaken (ROZ) op 5 maart 2025 vastgesteld en het model is tevens gepubliceerd op de website www.roz.nl inclusief aanvullende bepalingen verhuurder. Daarnaast is het huishoudelijk reglement en de akte van splitsing van toepassing.
BTW
Verhuurder wenst te opteren voor BTW.-belaste huur en verhuur. Ingeval huurder de BTW. niet kan verrekenen zal de huurprijs in overleg met huurder worden verhoogd ter compensatie van de gevolgen van het vervallen van de mogelijkheid om te opteren voor BTW.-belaste huur.
Energielabel : A
Algemeen : de informatie betreffende de bedrijfsruimte aan de Facetlaan 15 te Bleiswijk is met zorg samengesteld. Voor de juistheid daarvan kan door Hopman en Schreuder Bedrijfshuisvesting BV geen aansprakelijkheid worden aanvaard, noch kan aan de vermelde gegevens enig recht worden ontleend. Alle opgegeven oppervlakten en afmetingen zijn indicatief. Deze informatie dient slechts als uitnodiging om in onderhandeling te treden en kan derhalve niet worden beschouwd als een aanbod of offerte. Van toepassing zijn de NVM voorwaarden.
Kenmerken
Overdracht
- Huurprijs
- € 45.000,- p.j. (21% BTW)
- Servicekosten
- € 35,- p.m.
- Status
- beschikbaar
- Aanvaarding
- in overleg
Bouw
- Type
- Bedrijfsruimte
- Soort bouw
- bestaande bouw
- Bouwjaar
- 2020
- Onderhoud binnen
- uitstekend
- Onderhoud buiten
- uitstekend
- Energielabel
- A
Locatie
- Ligging
- bedrijventerrein
- Snelweg afrit
- < 500 m
- NS station
- 4000 m - 5000 m
- Bus knooppunt
- < 500 m
Bedrijfshal
- Oppervlakte
- 200 m²
- Vloerbelasting
- 1000 kg / m2
- Voorzieningen
- Betonvloer, Overhead deuren, Toilet
Kantoorruimte
- Oppervlakte
- 117 m²
- Verdiepingen
- 1
- Voorzieningen
- Te openen ramen, Airco
Parkeren
- Niet overdekt
- 5
Foto's
Plattegronden
Kaart
Reageer op dit object
Heb je interesse in dit object? Vul onderstaand jouw gegevens in en we nemen zo snel mogelijk contact met je op.























