Facetlaan 35, 2665 NR Bleiswijk
Omschrijving
Te huur bedrijfsruimte
Facetlaan 35, 2665 NR Bleiswijk
ALGEMEEN
Op een strategische locatie aan de Facetlaan in Bleiswijk, op bedrijvenpark "Prisma", is deze bedrijfsruimte beschikbaar voor verhuur. Dit moderne pand maakt deel uit van het project 'De Jade fase 2', bestaande uit 27 hoogwaardige bedrijfsruimten. De hoekunit heeft een oppervlakte van circa 218 m² en is gelegen op een goed bereikbare en zichtbare locatie, nabij de A12 en A20.
Bedrijvenpark "Prisma" ligt in Bleiswijk (gemeente Lansingerland), midden in de Randstad en prima ontsloten. De vier grootste steden van Nederland zijn eenvoudig te bereiken. De afslag A12 (Den Haag-Utrecht) ligt op korte afstand van de toegang tot het bedrijvenpark en dus ook van onze projectlocatie. Middels treinstation Bleizo (Bleiswijk/Zoetermeer) is de Facetlaan 15 uitstekend bereikbaar met het openbaar vervoer. Op Bedrijvenpark "Prisma" zijn onder andere Hoogvliet (dc), Aldi (bakkerij), Concave, wasstraat H2O en Drake & Farrell gevestigd. Op korte afstand treft u bovendien een tankstation en vestigingen van McDonalds en KFC aan.
KADASTRALE GEGEVENS
Gemeente : Bleiswijk
Sectie : A
Nummer : 1471 A1 (ontstaan uit 1547)
Bouwjaar: 2020
BESTEMMING
De bestemming van Facetlaan 35 is 'Bedrijventerrein'.
Bestemmingsplan : Hoefweg-Noord (Prisma)
Planstatus : vastgesteld op 18 juli 2013
Overheid: gemeente Lansingerland
Enkelbestemming : Bedrijventerrein
Functieaanduiding : Bedrijf tot en met milieucategorie 3.1 van de 'Lijst van Bedrijfsactiviteiten'.
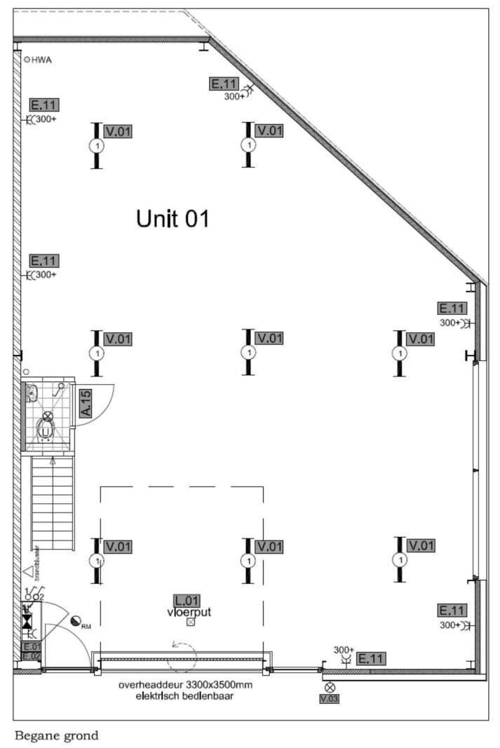
INDELING + OPLEVERINGSNIVEAU
De Facetlaan 35 beschikt over twee bouwlagen, als volgt ingedeeld:
- begane grond : ca. 109 m² bvo bedrijfsruimte
- eerste verdieping : ca. 109 m² bvo kantoorruimte.
Het pand beschikt over 6 eigen parkeerplaatsen.
Het object wordt opgeleverd met onder andere de volgende voorzieningen:
Bedrijfsruimte
- elektrische overheaddeur (ca. 3.5 m¹ hoog)
- betonvloer
- vrije hoogte ca. 4.5 m¹
- toilet
- afgesloten trapopgang
- vloerput
- LED verlichting
- diverse WCD's
Kantoorruimte
- huidige vloerbedekking plus wandindeling
- systeemplafond voorzien van LED verlichting
- geïsoleerde voorzetwanden
- pantry
- airconditioning voor verwarmen en koelen
- diverse WCD's
- data-aansluiting
Algemeen
- 15 zonnepanelen
- buitenlamp.
HUURCONDITIES
Huurprijs : € 30.000,- per jaar excl. BTW
Huurtermijn : in overleg
Huuringangsdatum : in overleg
Huurprijsindexatie : de huurprijs wordt jaarlijks geïndexeerd op basis van het Consumenten Prijsindexcijfer (CPI), reeks Alle huishoudens (2015=100) van het CBS. Voor het eerst een jaar na de huuringangsdatum
Huurprijsbetaling : per maand vooruit
Servicekosten: de servicekosten van de Facetlaan 35 bedragen € 420,- per jaar excl. BTW als voorschot voor de kosten van:
- onderhoud technische installaties;
- onderhoud algehele buitenruimte;
- onderhoud overheaddeur;
- dak onderhoud.
Huurder dient zelf contracten af te sluiten met de nutsbedrijven inzake de levering van water en elektra.
Bankgarantie : gelijk aan 3 maanden huur + 3 maanden servicekosten + BTW
Diversen : huurder dient zich te confirmeren aan het huishoudelijk reglement en de akte van splitsing
Voorbehoud : goedkeuring directie verhuurder / positief bedrijfsinformatierapport; één en ander ter beoordeling verhuurder
Contract : model door de Raad voor Onroerende Zaken (ROZ) op 5 maart 2025 vastgesteld en het model is tevens gepubliceerd op de website www.roz.nl inclusief aanvullende bepalingen verhuurder. Daarnaast is het huishoudelijk reglement en de akte van splitsing van toepassing.
BTW
Verhuurder wenst te opteren voor BTW.-belaste huur en verhuur. Ingeval huurder de BTW. niet kan verrekenen zal de huurprijs in overleg met huurder worden verhoogd ter compensatie van de gevolgen van het vervallen van de mogelijkheid om te opteren voor BTW.-belaste huur.
Energielabel : A
Algemeen : de informatie betreffende de bedrijfsruimte aan de Facetlaan 35 te Bleiswijk is met zorg samengesteld. Voor de juistheid daarvan kan door Hopman en Schreuder Bedrijfshuisvesting BV geen aansprakelijkheid worden aanvaard, noch kan aan de vermelde gegevens enig recht worden ontleend. Alle opgegeven oppervlakten en afmetingen zijn indicatief. Deze informatie dient slechts als uitnodiging om in onderhandeling te treden en kan derhalve niet worden beschouwd als een aanbod of offerte. Van toepassing zijn de NVM voorwaarden.
Kenmerken
Overdracht
- Huurprijs
- € 2.500,- p.m. (21% BTW)
- Servicekosten
- € 35,- p.m.
- Status
- beschikbaar
- Aanvaarding
- in overleg
Bouw
- Type
- Bedrijfsruimte
- Nevenbestemming
- kantoorruimte
- Soort bouw
- bestaande bouw
- Bouwjaar
- 2020
- Onderhoud binnen
- goed
- Onderhoud buiten
- goed
- Energielabel
- A
Locatie
- Ligging
- bedrijventerrein
- Snelweg afrit
- 1000 m - 1500 m
- Bushalte
- < 500 m
Bedrijfshal
- Oppervlakte
- 109 m²
- Vrije hoogte
- 450 cm
- Voorzieningen
- Betonvloer, Overhead deuren, Pantry, Toilet
Kantoorruimte
- Oppervlakte
- 109 m²
- Verdiepingen
- 1
- Voorzieningen
- Inbouwarmaturen, Te openen ramen, Airco
Parkeren
- Niet overdekt
- 6
Foto's
Plattegronden
Kaart
Reageer op dit object
Heb je interesse in dit object? Vul onderstaand jouw gegevens in en we nemen zo snel mogelijk contact met je op.














