Hoekeindseweg 147, 2665 KC Bleiswijk
Omschrijving
Te koop bedrijfsruimte
Hoekeindseweg 147, 2665 KC Bleiswijk
ALGEMEEN
Op een uitstekende zichtlocatie langs de N209, aan de Hoekeindseweg, bevindt zich een moderne en representatieve bedrijfshal met entresol. Deze bedrijfsruimte is ideaal voor diverse bedrijfsactiviteiten en biedt een functionele indeling met zowel opslag- als werkmogelijkheden. Het object beschikt over één eigen parkeerplaats direct voor de deur, wat zorgt voor extra gemak voor bezoekers en medewerkers. Daarnaast is er een toiletruimte aanwezig, waardoor het pand volledig gebruiksklaar is.
Hoekeindseweg 147 in Bleiswijk is gunstig gelegen aan de N209 met directe verbindingen naar de A12, A13 en A20, waardoor Rotterdam, Den Haag en Utrecht snel bereikbaar zijn. De omgeving bestaat uit moderne bedrijfsgebouwen en showrooms op een representatief bedrijventerrein. Ook per openbaar vervoer is de locatie goed bereikbaar. In de directe nabijheid zijn voorzieningen zoals winkels, een tuincentrum en recreatiegebieden, waardoor dit een praktische én aantrekkelijke vestigingslocatie is.
KADASTRALE GEGEVENS
Gemeente : Bleiswijk
Sectie : C
Nummer : 8069 A12 (ontstaan uit 8064)
Bouwjaar : 2021.
BESTEMMING
De bestemming van de Hoekeindseweg 147 is 'Bedrijventerrein'.
Bestemmingsplan : Hoekeindseweg 119
Planstatus : Onherroepelijk (vastgesteld 2018-06-05)
Overheid : Gemeente Lansingerland
Enkelbestemming : Bedrijventerrein
Categorie : Wonen uitgesloten
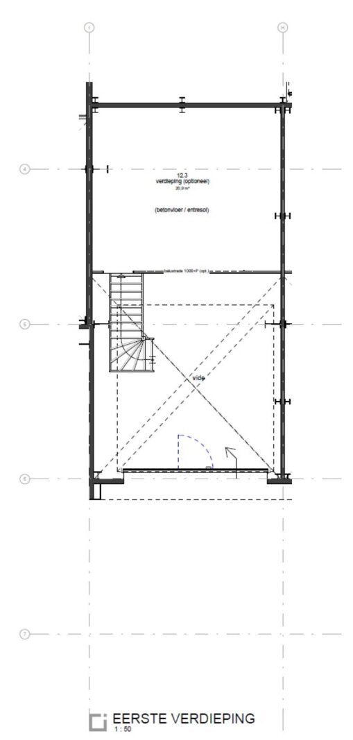
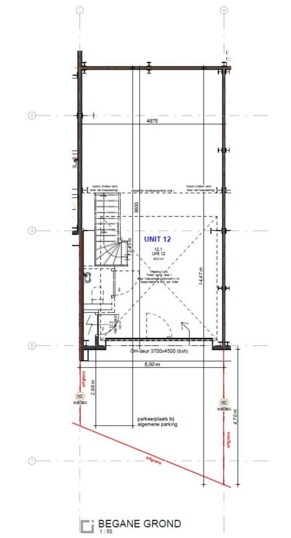
INDELING + OPLEVERINGSNIVEAU
Het object beschikt over ca. 62 m², als volgt ingedeeld:
begane grond : ca. 46 m² b.v.o. bedrijfsruimte
verdieping : ca. 16 m² b.v.o. entresol.
Het pand beschikt over 1 eigen parkeerplaats.
Het object wordt opgeleverd met onder andere de volgende voorzieningen:
- betonvloer
- vrije hoogte tussen de ca. 6 en 9 m¹ (tot entresol ca. 2,93 m¹)
- elektrische overheaddeur (3,7 m¹ x 4,5 m¹) met loopdeur
- entresolvloer (beton) van ca. 16 m²
- stalen trap
- toilet
- uitstortgootsteen
- brandblusapparaat
KOOPSOM EN OPLEVERING
Koopsom : € 149.500,- k.k. te vermeerderen met BTW
Oplevering : in overleg
Diversen : koper dient zich te confirmeren aan het huishoudelijk reglement en de akte van splitsing
VvE : € 1.158,96 per jaar (2025)
Energielabel : niet labelplichtig
Algemeen : de informatie betreffende de bedrijfsruimte aan de Hoekeindseweg 147 te Bleiswijk is met zorg samengesteld. Voor de juistheid daarvan kan door Hopman en Schreuder Bedrijfshuisvesting BV geen aansprakelijkheid worden aanvaard, noch kan aan de vermelde gegevens enig recht worden ontleend. Alle opgegeven oppervlakten en afmetingen zijn indicatief. Deze informatie dient slechts als uitnodiging om in onderhandeling te treden en kan derhalve niet worden beschouwd als een aanbod of offerte. Van toepassing zijn de NVM voorwaarden.
Kenmerken
Overdracht
- Vraagprijs
- € 149.500,- k.k. (21% BTW)
- Status
- beschikbaar
- Aanvaarding
- in overleg
Bouw
- Type
- Bedrijfsruimte
- Soort bouw
- bestaande bouw
- Bouwjaar
- 2021
- Onderhoud binnen
- goed
- Onderhoud buiten
- goed
Locatie
- Ligging
- bedrijventerrein
- Snelweg afrit
- 2000 m - 3000 m
- Bushalte
- 500 m - 1000 m
Bedrijfshal
- Oppervlakte
- 62 m²
- Voorzieningen
- Betonvloer, Overhead deuren, Toilet
Parkeren
- Niet overdekt
- 1
Foto's
Plattegronden
Kaart
Reageer op dit object
Heb je interesse in dit object? Vul onderstaand jouw gegevens in en we nemen zo snel mogelijk contact met je op.








