Facetlaan 15, 2665 NR Bleiswijk

BLEISWIJK
Huurprijs: € 45.000,- p.j. (21% BTW)

Omschrijving

Te huur bedrijfsruimte

Facetlaan 15, 2665 NR Bleiswijk

ALGEMEEN

Op een strategische locatie aan de Facetlaan in Bleiswijk, op bedrijvenpark "Prisma", is deze bedrijfsruimte beschikbaar voor verhuur. Dit moderne pand maakt deel uit van het project 'De Jade fase 2', bestaande uit 27 hoogwaardige bedrijfsruimten. De unit heeft een oppervlakte van circa 200 m² op de begane grond en is gelegen op een goed bereikbare en zichtbare locatie, nabij de A12 en A20.

Bedrijvenpark "Prisma" ligt in Bleiswijk (gemeente Lansingerland), midden in de Randstad en prima ontsloten. De vier grootste steden van Nederland zijn eenvoudig te bereiken. De afslag A12 (Den Haag _ Utrecht) ligt op korte afstand van de toegang tot het bedrijvenpark en dus ook van onze projectlocatie. Middels treinstation Bleizo (Bleiswijk/Zoetermeer) is de Facetlaan 15 uitstekend bereikbaar met het openbaar vervoer. Op Bedrijvenpark "Prisma" zijn onder andere Hoogvliet (dc), Aldi (bakkerij), Concave, wasstraat H2O en Drake & Farrell gevestigd. Op korte afstand treft u bovendien een tankstation en vestigingen van McDonalds en KFC aan.

KADASTRALE GEGEVENS

Gemeente : Bleiswijk
Sectie : A
Nummer : 1471 A25 (ontstaan uit 1547)
Bouwjaar : 2020.

BESTEMMING

De bestemming van de Facetlaan 15 is 'Bedrijventerrein'.

Bestemmingsplan : Hoefweg-Noord (prisma)

Planstatus : Vastgesteld op 18 juli 2013

Overheid : Gemeente Lansingerland

Categorie : Bedrijf tot en met categorie 3.1

Enkelbestemming : Bedrijventerrein

INDELING + OPLEVERINGSNIVEAU

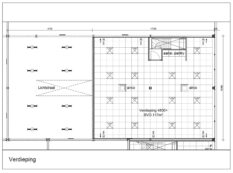
De Facetlaan 15 heeft een totale oppervlakte van ca. 317 m² bvo als volgt onderverdeeld:

Begane grond : ca. 200 m² bvo bedrijfsruimte
Eerste verdieping : ca. 117 m² bvo bedrijfsruimte, thans ingericht als kantoor

Bij het gehuurde behoren 5 eigen parkeerplaatsen.

Het object wordt opgeleverd met onder andere de volgende voorzieningen:

Bedrijfsruimte
- 5 parkeerplaatsen
- gevlinderde betonvloer 1.000kg/m²
- elektrisch bedienbare overheaddeur
- goede vloer, gevel en dakisolatie
- isolerende beglazing
- aluminium kozijnen
- betegeld toilet
- systeemplafond entree
- LED armaturen
- meterkastinrichting

Verdieping
- systeemplafond + LED armaturen
- pantry
- WCD + UTP aansluitingen verdeeld over de ruimte
- 2 airco units voor het verwarmen en koelen van de ruimte
- betonnen verdiepingsvloer belasting 500 kg/m²

HUURCONDITIES

Huurprijs : € 45.000,- per jaar excl. BTW

Huurtermijn : in overleg

Huuringangsdatum : in overleg

Huurprijsindexatie : de huurprijs wordt jaarlijks geïndexeerd op basis van het Consumenten Prijsindexcijfer (CPI), reeks Alle huishoudens (2015=100) van het CBS. Voor het eerst een jaar na de huuringangsdatum

Huurprijsbetaling : per maand vooruit

Servicekosten: de servicekosten bedragen € 420,- per jaar excl. BTW als voorschot voor de kosten van:

- schoonmaak en diensten, verzorgd door de VvE
- onderhoudswerkzaamheden, verzorgd door de VvE

Huurder dient zelf contracten af te sluiten met de nutsbedrijven inzake de levering van water en elektra

Bankgarantie : gelijk aan 3 maanden huur + 3 maanden servicekosten + BTW

Voorbehoud : goedkeuring directie verhuurder/ positief bedrijfsinformatierapport; ter beoordeling van verhuurder.

Contract : model door de Raad voor Onroerende Zaken (ROZ) op 5 maart 2025 vastgesteld en het model is tevens gepubliceerd op de website www.roz.nl inclusief aanvullende bepalingen verhuurder. Daarnaast is het huishoudelijk reglement en de akte van splitsing van toepassing.

BTW
Verhuurder wenst te opteren voor BTW.-belaste huur en verhuur. Ingeval huurder de BTW. niet kan verrekenen zal de huurprijs in overleg met huurder worden verhoogd ter compensatie van de gevolgen van het vervallen van de mogelijkheid om te opteren voor BTW.-belaste huur.

Energielabel : A

Algemeen : de informatie betreffende de bedrijfsruimte aan de Facetlaan 15 te Bleiswijk is met zorg samengesteld. Voor de juistheid daarvan kan door Hopman en Schreuder Bedrijfshuisvesting BV geen aansprakelijkheid worden aanvaard, noch kan aan de vermelde gegevens enig recht worden ontleend. Alle opgegeven oppervlakten en afmetingen zijn indicatief. Deze informatie dient slechts als uitnodiging om in onderhandeling te treden en kan derhalve niet worden beschouwd als een aanbod of offerte. Van toepassing zijn de NVM voorwaarden.

Kenmerken

Overdracht

Huurprijs
€ 45.000,- p.j. (21% BTW)
Servicekosten
€ 35,- p.m.
Status
beschikbaar
Aanvaarding
in overleg

Bouw

Type
Bedrijfsruimte
Soort bouw
bestaande bouw
Bouwjaar
2020
Onderhoud binnen
uitstekend
Onderhoud buiten
uitstekend
Energielabel
A

Locatie

Ligging
bedrijventerrein
Snelweg afrit
< 500 m
NS station
4000 m - 5000 m
Bus knooppunt
< 500 m

Bedrijfshal

Oppervlakte
200 m²
Vloerbelasting
1000 kg / m2
Voorzieningen
Betonvloer, Overhead deuren, Toilet

Kantoorruimte

Oppervlakte
117 m²
Verdiepingen
1
Voorzieningen
Te openen ramen, Airco

Parkeren

Niet overdekt
5

Foto's

Facetlaan 15, 2665 NR BleiswijkFacetlaan 15, 2665 NR BleiswijkFacetlaan 15, 2665 NR BleiswijkFacetlaan 15, 2665 NR BleiswijkFacetlaan 15, 2665 NR BleiswijkFacetlaan 15, 2665 NR BleiswijkFacetlaan 15, 2665 NR BleiswijkFacetlaan 15, 2665 NR BleiswijkFacetlaan 15, 2665 NR BleiswijkFacetlaan 15, 2665 NR BleiswijkFacetlaan 15, 2665 NR BleiswijkFacetlaan 15, 2665 NR BleiswijkFacetlaan 15, 2665 NR BleiswijkFacetlaan 15, 2665 NR BleiswijkFacetlaan 15, 2665 NR BleiswijkFacetlaan 15, 2665 NR BleiswijkFacetlaan 15, 2665 NR BleiswijkFacetlaan 15, 2665 NR BleiswijkFacetlaan 15, 2665 NR Bleiswijk

Plattegronden

Facetlaan 15, 2665 NR BleiswijkFacetlaan 15, 2665 NR BleiswijkFacetlaan 15, 2665 NR BleiswijkFacetlaan 15, 2665 NR Bleiswijk

Kaart

Reageer op dit object

Heb je interesse in dit object? Vul onderstaand jouw gegevens in en we nemen zo snel mogelijk contact met je op.