Van der Waalsstraat ong, 2721 KX Zoetermeer
Omschrijving
Te koop bedrijfsruimte
Van der Waalsstraat, 2721 KX Zoetermeer (Gebouw 5, unit 5.1)
ALGEMEEN
Op bedrijventerrein Oosterhage, aan de rand van de woonwijk Oosterheem op een prominente zichtlocatie gaat gebouw 5 van "Business Complex Zoetermeer" gerealiseerd worden. "Business Complex Zoetermeer" biedt ruimte aan ondernemers die op zoek zijn naar hoogwaardige en representatieve huisvesting voor succesvol ondernemen.
Bij het ontwerp is rekening gehouden met functionele ruimten, een representatief uiterlijk, hedendaagse isolatienormen, onderhoudsarme materialen en de mogelijkheid tot het plaatsen van zonnepanelen op het dak. Kortom een investering in duurzaam vastgoed!
De van der Waalsstraat is gesitueerd noordelijk van het Prismaterrein (Bleiswijk), aan de rand van de woonwijk Oosterheem in Zoetermeer en is eenvoudig bereikbaar vanaf Rijksweg A12 via de N209 en de verlengde Australiëweg (ringweg door Zoetermeer). Via de N470/471 zijn ook snelwegen A13 en A20 snel bereikbaar.
Op het bedrijventerrein Oosterhage zijn o.a. de volgende bedrijven gevestigd: Dräger Nederland B.V., NBD Biblion en Fortune Coffee.
KADASTRALE GEGEVENS
Gemeente : Zegwaard
Sectie : F
Nummer : 5864 (gedeeltelijk)
Bouwjaar: in ontwikkeling
BESTEMMING
De bestemming van de van der Waalsstraat is "bedrijventerrein".
Bestemmingsplan : Businesspark Oosterheem
Planstatus : onherroepelijk (16 augustus 2013)
Overheid : gemeente Zoetermeer
Enkelbestemming : bedrijventerrein
Categorie : bedrijven t/m categorie 3.1 (afwijkbevoegdheid van het bevoegd gezag t/m categorie 4.1)
Maatvoering : maximum bouwhoogte 15 meter
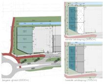
INDELING + OPLEVERINGSNIVEAU
Unit 5.1 (verkocht onder voorbehoud)
- ca. 327 m² bvo bedrijfsruimte
- ca. 162 m² bvo kantoorruimte/entresol op de eerste verdieping
- ca. 118 m² bvo kantoorruimte op de tweede verdieping
- ca. 44 m² b.v.o. dakterras
Bij het object behoren 9 eigen parkeerplaatsen.
Unit 5.2
- ca. 252 m² bvo bedrijfsruimte
- ca. 143 m² bvo kantoorruimte/entresol op de eerste verdieping
- ca. 110 m² bvo kantoorruimte op de tweede verdieping
- ca. 33 m² b.v.o. dakterras
Bij het object behoren 7 eigen parkeerplaatsen.
Unit 5.3
- ca. 286 m² bvo bedrijfsruimte
- ca. 163 m² bvo kantoorruimte/entresol op de eerste verdieping
- ca. 125 m² bvo kantoorruimte op de tweede verdieping
- ca. 38 m² b.v.o. dakterras
Bij het object behoren 9 eigen parkeerplaatsen.
De bedrijfs-/kantoorruimte wordt casco opgeleverd, maar een turn-key oplevering is mogelijk. De verdiepingen kunnen dan ingericht worden als kantoor/showroom.
De bedrijfs-/kantoorruimte aan de Van der Waalsstraat wordt casco opgeleverd, voorzien van o.a.:
- meterkast
- elektrische overheaddeur (3,5 m¹ x 4,0 m¹)
- separate toegangsdeur
- aluminium kozijnen (draai-/kiepramen, ramen voorzien van HR++ isolatieglas)
- dakterras voorzien van een stalen balustrade met veiligheidsglas
- rioolaansluiting
- vloerbelasting begane grond ca. 2.500 kg/m²
- monoliet afgewerkte onderheide gewapende betonvloer (begane grond)
- vloerbelasting verdiepingsvloer ca. 400 kg/m²
- zelfdragende kanaalplaat systeemvloer (verdiepingen)
- betontrappen
KOOPSOM & OPLEVERING
Koopsom unit 5.1 : verkocht onder voorbehoud
Koopsom unit 5.2 : € 960.000,- v.o.n. excl. BTW middels koop-/aannemingsovereenkomst
Koopsom unit 5.3 : € 1.095.000,- v.o.n. excl. BTW middels koop-/aannemingsovereenkomst
Oplevering : ca. 12 maanden na ondertekening koop-/aannemingsovereenkomst
Borg : 10% van de koopsom te storten bij de notaris binnen 14 dagen na ondertekening koop-/aannemingsovereenkomst
Energielabel : nieuwbouw derhalve nog geen label aanwezig
Algemeen : de informatie betreffende de bedrijfsruimte aan de Van der Waalsstraat, gebouw 5 te Zoetermeer is met zorg samengesteld. Voor de juistheid daarvan kan door Hopman en Schreuder Bedrijfshuisvesting BV geen aansprakelijkheid worden aanvaard, noch kan aan de vermelde gegevens enig recht worden ontleend. Alle opgegeven oppervlakten en afmetingen zijn indicatief. Deze informatie dient slechts als uitnodiging om in onderhandeling te treden en kan derhalve niet worden beschouwd als een aanbod of offerte. Van toepassing zijn de NVM voorwaarden.
Kenmerken
Overdracht
- Vraagprijs
- € 1.295.000,- v.o.n. (21% BTW)
- Status
- Verkocht
- Aanvaarding
- in overleg
Bouw
- Type
- Bedrijfsruimte
- Soort bouw
- nieuwbouw
- Bouwjaar
- 2021-2030
- Onderhoud binnen
- goed
- Onderhoud buiten
- goed
Locatie
- Ligging
- bedrijventerrein
- Snelweg afrit
- 2000 m - 3000 m
Bedrijfshal
- Oppervlakte
- 327 m²
- Vloerbelasting
- 2500 kg / m2
- Voorzieningen
- Betonvloer, Overhead deuren
Kantoorruimte
- Oppervlakte
- 280 m²
- Verdiepingen
- 2
Parkeren
- Niet overdekt
- 9
Foto's
Plattegronden
Kaart
Reageer op dit object
Heb je interesse in dit object? Vul onderstaand jouw gegevens in en we nemen zo snel mogelijk contact met je op.







