Van der Waalsstraat 6, 2721 KX Zoetermeer

ZOETERMEER
Vraagprijs: € 960.000,- v.o.n. (21% BTW)

Omschrijving

Te koop bedrijfsruimte

Van der Waalsstraat 6, 2721 KX Zoetermeer

De bouw is reeds gestart!

ALGEMEEN

Op bedrijventerrein Oosterhage, aan de rand van de woonwijk Oosterheem op een prominente zichtlocatie gaat gebouw 5 van "Business Complex Zoetermeer" gerealiseerd worden. "Business Complex Zoetermeer" biedt ruimte aan ondernemers die op zoek zijn naar hoogwaardige en representatieve huisvesting voor succesvol ondernemen.
Bij het ontwerp is rekening gehouden met functionele ruimten, een representatief uiterlijk, hedendaagse isolatienormen, onderhoudsarme materialen en de mogelijkheid tot het plaatsen van zonnepanelen op het dak. Kortom een investering in duurzaam vastgoed!

De van der Waalsstraat 6 is gesitueerd noordelijk van het Prismaterrein (Bleiswijk), aan de rand van de woonwijk Oosterheem in Zoetermeer en is eenvoudig bereikbaar vanaf Rijksweg A12 via de N209 en de verlengde Australiëweg (ringweg door Zoetermeer). Via de N470/471 zijn ook snelwegen A13 en A20 snel bereikbaar.

Op het bedrijventerrein Oosterhage zijn o.a. de volgende bedrijven gevestigd: Dräger Nederland B.V., NBD Biblion en Fortune Coffee.

KADASTRALE GEGEVENS

Gemeente : Zegwaard
Sectie : F
Nummer : 5864 (gedeeltelijk)
Bouwjaar: in ontwikkeling

BESTEMMING

De bestemming van de van der Waalsstraat 6 is "bedrijventerrein".

Bestemmingsplan : Businesspark Oosterheem

Planstatus : onherroepelijk (16 augustus 2013)

Overheid : gemeente Zoetermeer

Enkelbestemming : bedrijventerrein

Categorie : bedrijven t/m categorie 3.1 (afwijkbevoegdheid van het bevoegd gezag t/m categorie 4.1)

Maatvoering : maximum bouwhoogte 15 meter

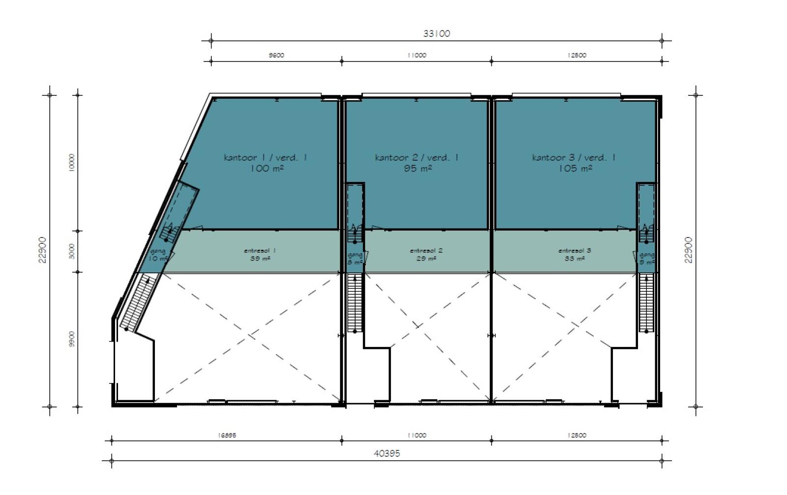
INDELING + OPLEVERINGSNIVEAU

Van der Waalsstraat 6 (unit 5.2)
- ca. 252 m² bvo bedrijfsruimte
- ca. 143 m² bvo kantoorruimte/entresol op de eerste verdieping
- ca. 110 m² bvo kantoorruimte op de tweede verdieping
- ca. 33 m² b.v.o. dakterras

Bij het object behoren 7 eigen parkeerplaatsen.

De bedrijfs-/kantoorruimte wordt casco opgeleverd, maar een turn-key oplevering is mogelijk. De verdiepingen kunnen dan ingericht worden als kantoor/showroom.

De bedrijfs-/kantoorruimte wordt casco opgeleverd, voorzien van o.a.:

- meterkast
- elektrische overheaddeur (3,5 m¹ x 4,0 m¹)
- separate toegangsdeur
- aluminium kozijnen (draai-/kiepramen, ramen voorzien van HR++ isolatieglas)
- dakterras voorzien van een stalen balustrade met veiligheidsglas
- rioolaansluiting
- vloerbelasting begane grond ca. 2.500 kg/m²
- monoliet afgewerkte onderheide gewapende betonvloer (begane grond)
- vloerbelasting verdiepingsvloer ca. 400 kg/m²
- zelfdragende kanaalplaat systeemvloer (verdiepingen)
- betontrappen

KOOPSOM & OPLEVERING

Koopsom : € 960.000,- v.o.n. excl. BTW middels koop-/aannemingsovereenkomst

Oplevering : ca. oktober 2026

Borg : 10% van de koopsom te storten bij de notaris binnen 14 dagen na ondertekening koop-/aannemingsovereenkomst

Energielabel : nieuwbouw derhalve nog geen label aanwezig

Algemeen : de informatie betreffende de bedrijfsruimte aan de Van der Waalsstraat 6 te Zoetermeer is met zorg samengesteld. Voor de juistheid daarvan kan door Hopman en Schreuder Bedrijfshuisvesting BV geen aansprakelijkheid worden aanvaard, noch kan aan de vermelde gegevens enig recht worden ontleend. Alle opgegeven oppervlakten en afmetingen zijn indicatief. Deze informatie dient slechts als uitnodiging om in onderhandeling te treden en kan derhalve niet worden beschouwd als een aanbod of offerte. Van toepassing zijn de NVM voorwaarden.

Kenmerken

Overdracht

Vraagprijs
€ 960.000,- v.o.n. (21% BTW)
Status
beschikbaar
Aanvaarding
in overleg

Bouw

Type
Bedrijfsruimte
Soort bouw
nieuwbouw
Bouwjaar
2021-2030
Onderhoud binnen
goed
Onderhoud buiten
goed

Locatie

Ligging
bedrijventerrein
Snelweg afrit
2000 m - 3000 m

Bedrijfshal

Oppervlakte
252 m²
Vloerbelasting
2500 kg / m2
Voorzieningen
Betonvloer, Overhead deuren

Kantoorruimte

Oppervlakte
253 m²
Verdiepingen
2

Parkeren

Niet overdekt
7

Foto's

Van der Waalsstraat 6, 2721 KX ZoetermeerVan der Waalsstraat 6, 2721 KX ZoetermeerVan der Waalsstraat 6, 2721 KX ZoetermeerVan der Waalsstraat 6, 2721 KX ZoetermeerVan der Waalsstraat 6, 2721 KX Zoetermeer

Plattegronden

Van der Waalsstraat 6, 2721 KX ZoetermeerVan der Waalsstraat 6, 2721 KX Zoetermeer

Kaart

Reageer op dit object

Heb je interesse in dit object? Vul onderstaand jouw gegevens in en we nemen zo snel mogelijk contact met je op.