Werner von Siemensstraat 11 (C2), 2712 PN ZOETERMEER
Omschrijving
Te huur kantoorruimte
Werner von Siemensstraat 11, 2712 PN ZOETERMEER
ALGEMEEN
De kantoorruimte met lab c.q. bedrijfsruimte aan de Werner von Siemensstraat 11 (C2) is gelegen op de Dutch Tech Campus in Zoetermeer. De Dutch Tech Campus is gelegen op het voormalig Siemens complex langs de A12 en bestaat uit een 6-tal kantoorgebouwen en een 5-tal (logistieke) bedrijfsruimten. Het terrein wordt daarnaast constant ontwikkeld en getransformeerd, waarbij hoogwaardig materiaal wordt gebruikt en duurzaamheid centraal staat. Het pand is voorzien van een energielabel A.
Dutch Tech Campus is de thuisbasis voor technologie bedrijven. De Dutch Tech Campus is een campus waar technologie en ondernemen bij elkaar komen en waar diverse nationale en internationale gerenommeerde technologiebedrijven, waaronder Siemens, Yunex Traffic, Topcon Positioning, TKH, WS Audiology, Reconext, en Lamboo Medical reeds zijn gevestigd. De campusbedrijven worden daarnaast door de Campus gestimuleerd en gefaciliteerd in het delen van kennis en voorzieningen.
Uw organisatie vestigen op de Dutch Tech Campus betekent onder andere werken in het hart van technologie met alle denkbare faciliteiten en services binnen handbereik. Samenwerken met de gevestigde (inter)nationale bedrijven met een groot netwerk en veel technologische kennis en gebruik maken van bestaande samenwerkingen met onderwijsinstellingen zoals De Haagse Hogeschool en mboRijnland (met ruim 2000 IT-studenten), Dutch Innovation Community, de gemeente en omliggende metropoolregio. Door kennis te delen en samen te werken ontstaat een inspirerende werkomgeving met vernieuwende oplossingen en businesskansen. Bovendien is de Dutch Tech Campus gelegen op een optimale zichtlocatie en heeft een goede bereikbaarheid door ligging langs de A12 en treinstation Lansingerland Zoetermeer. De Campus zelf beschikt over uitstekende parkeerfaciliteiten alsmede horeca, vergader- en event faciliteiten.
KADASTRALE GEGEVENS
Gemeente: Zegwaard
Sectie: E
Nummer: 2566 (gedeeltelijk)
Bouwjaar: 1990
BESTEMMING
De bestemming van de Werner von Siemensstraat 11 (C2) is "bedrijventerrein".
Bestemmingsplan Kwadrant/VanTuyll sportpark/Brinkhage/Lansinghage
Planstatus: onherroepelijk (16 augustus 2013)
Overheid: gemeente Zoetermeer
Enkelbestemming: bedrijventerrein
Categorie: functieaanduiding bedrijf tot en met categorie 3.2
Maatvoering: maximum bebouwingspercentage terrein 60%
maximum bouwhoogte 12 m
maximum goothoogte 8 m
INDELING EN OPLEVERINGSNIVEAU
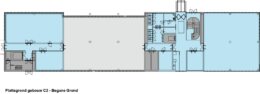
Op de Dutch Tech Campus, Werner von Siemensstraat 11, gebouw C2 is momenteel nog circa 2.237 m² vvo kantoorruimte beschikbaar, als volgt ingedeeld:
- circa 411 m² vvo lab c.q. hoogwaardige bedrijfsruimte gelegen op de begane grond;
- circa 909 m² vvo kantoorruimte gelegen op de eerste verdieping (geheel), huren mogelijk vanaf circa 274 m² vvo
- circa 917 m² vvo kantoorruimte gelegen op de tweede verdieping (geheel)
Desgewenst is er een mogelijkheid om bedrijfsruimte bij te huren.
Er zijn meer dan 500 parkeerplaatsen en ruim voldoende laadpalen verspreid over de Dutch Tech Campus. Het parkeerterrein is voorzien van een slagboom met nummerbordherkenning. Bezoekers kunnen parkeren op de bezoekers-parkeerplekken.
Het object wordt opgeleverd met onder andere de volgende voorzieningen:
- gerenoveerde entree (gemeenschappelijk);
- trappenhuis d.m.v. centrale gerenoveerde stalen trap;
- centrale verwarming middels radiatoren voorzien van thermostaatkranen;
- te openen ramen;
- ventilatie;
- pantry op de eerste verdieping (gemeenschappelijk);
- dames- en herentoiletgroep per verdieping (gemeenschappelijk);
- liftinstallatie per verdieping (gemeenschappelijk);
- goederenlift per verdieping (lange zijde);
- rookmelders;
- ontruimingsinstallatie;
- Energielabel A
HUURCONDITIES
Huurprijs: € 145,- per m2 per jaar excl. BTW
Huurtermijn: in overleg
Huuringangsdatum: in overleg
Huurprijsindexatie: de huurprijs wordt jaarlijks geïndexeerd op basis van het Consumenten Prijsindexcijfer (CPI), reeks Alle huishoudens (2015=100) van het CBS. Voor het eerst een jaar na de huuringangsdatum
Huurprijsbetaling: per kwartaal vooruit
Servicekosten: 52,50 per m2 per jaar excl. BTW als voorschot
Bankgarantie: gelijk aan 3 maanden huur + 3 maanden servicekosten + BTW
Contract: model door de Raad voor Onroerende Zaken (ROZ) op 30-1-2015 vastgesteld - waarbij artikel 4.5 in april 2024 is aangepast - en op 8 april gedeponeerd bij de griffie van de rechtbank te Den Haag en aldaar ingeschreven onder nummer 10/2024 tevens gepubliceerd op de website www.roz.nl inclusief aanvullende bepalingen verhuurder. Daarnaast is het huishoudelijk reglement en de akte van splitsing van toepassing.
Voorbehoud: goedkeuring directie verhuurder/ positief bedrijfsinformatierapport; ter beoordeling van verhuurder.
BTW
Verhuurder wenst te opteren voor BTW-belaste huur en verhuur. Ingeval huurder de BTW niet kan verrekenen zal de huurprijs worden verhoogd ter compensatie van de gevolgen van het vervallen van de mogelijkheid om te opteren voor BTW-belaste huur.
Energielabel: A
Algemeen: de informatie betreffende de kantoorruimte aan de Werner von Siemensstraat 11 (C2) te Zoetermeer is met zorg samengesteld. Voor de juistheid daarvan kan door Hopman en Schreuder Bedrijfshuisvesting BV geen aansprakelijkheid worden aanvaard, noch kan aan de vermelde gegevens enig recht worden ontleend. Alle opgegeven oppervlakten en afmetingen zijn indicatief. Deze informatie dient slechts als uitnodiging om in onderhandeling te treden en kan derhalve niet worden beschouwd als een aanbod of offerte. Van toepassing zijn de NVM voorwaarden.
Kenmerken
Overdracht
- Huurprijs
- € 145,- per vierkante meter p.j. (21% BTW)
- Servicekosten
- € 53,- per vierkante meter p.j.
- Status
- beschikbaar
- Aanvaarding
- in overleg
Bouw
- Type
- Kantoorruimte
- Soort bouw
- bestaande bouw
- Bouwjaar
- 1981-1990
- Onderhoud binnen
- goed
- Onderhoud buiten
- goed
- Energielabel
- A
Locatie
- Ligging
- bedrijventerrein
- Snelweg afrit
- 500 m - 1000 m
- NS station
- 1000 m - 1500 m
- Bushalte
- 500 m - 1000 m
Kantoorruimte
- Oppervlakte
- 2.237 m²
- Verdiepingen
- 2
- Voorzieningen
- Pantry, Systeemplafond, Te openen ramen, Toilet, Verwarming, Topkoeling
- In units vanaf
- 274
- Turn key
- nee
Parkeren
- Niet overdekt
- 500
- Prijs niet overdekt
- € 750,-
Foto's
Plattegronden
Kaart
Reageer op dit object
Heb je interesse in dit object? Vul onderstaand jouw gegevens in en we nemen zo snel mogelijk contact met je op.













