Industrieweg 4M, 2712 LB Zoetermeer
Omschrijving
Te huur bedrijfsruimte
Industrieweg 4M, 2712 LB Zoetermeer
ALGEMEEN
Industrieweg 4M is onderdeel van het moderne project "ZET units" en ligt op een uitstekende locatie in Zoetermeer, op bedrijventerrein Rokkehage (wijk 12). Deze representatieve bedrijfsunit bevindt zich in een strak vormgegeven bedrijfsverzamelgebouw dat gemakkelijk bereikbaar is, zowel met de auto als het openbaar vervoer. Een ideale plek voor ondernemers die op zoek zijn naar een praktische én professionele werkomgeving.
De Industrieweg 4M is gelegen in Zoetermeer, op bedrijventerrein Rokkehage (wijk 12). Het bedrijfsverzamelgebouw, waar deze unit deel vanuit maakt is gelegen op een goed bereikbare locatie, in de directe nabijheid van het oude dorp en op korte afstand van het Stadshart. De "ring" Oostweg-Australiëweg-Afrikaweg, welke de diverse woonwijken in Zoetermeer gelegen ten noorden van de A12 met elkaar verbindt, ligt op een steenworp afstand. De locatie is bovendien gelegen nabij de rijksweg A12 richting Utrecht en Den Haag alsmede de N470 richting Delft, met een prima aansluiting op de A13 richting Rotterdam.
KADASTRALE GEGEVENS
Gemeente : Zegwaard
Sectie : E
Nummer : 2659 A1 (ontstaan uit 2656)
Bouwjaar: 2021
BESTEMMING
De bestemming van de Industrieweg 4M is 'bedrijventerrein'
Bestemmingsplan Noordelijke bedrijventerreinen
Planstatus : onherroepelijk (2013-09-20)
Overheid : gemeente Zoetermeer
Enkelbestemming : bedrijventerrein
Categorie : bedrijf tot en met categorie 3.1
Maatvoering : maximum bouwhoogte: 15 m
INDELING + OPLEVERINGSNIVEAU
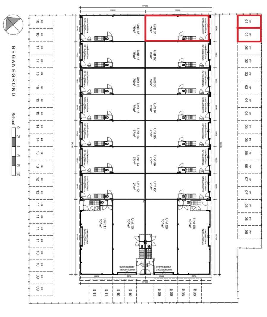
De Industrieweg 4M heeft een totale oppervlakte van ca. 150 m² bvo, als volgt onderverdeeld:
- begane grond : ca. 75 m² bvo
- entresol : ca. 43 m² bvo
- eerste verdieping : ca. 75 m² bvo, thans ingericht als kantoor
Het pand beschikt over 2 eigen parkeerplaatsen.
Het object wordt opgeleverd met onder andere de volgende voorzieningen:
Begane grond
- gevlinderde betonvloer
- vloerbelasting 1.000 kg/m²
- gebouwhoogte 8,5 m¹
- elektrisch bedienbare overheaddeur van 3,5 m¹ hoog
- separate toegangsdeur
- toiletruimte
- LED-verlichting
- meterkast
- vaste trap naar entresol
- entresolvloer (vloerbelasting 350 kg/m²)
Eerste verdieping
- LED-verlichting
- kanaalplaten (betonnen) verdiepingsvloer
- vloerbelasting 500 kg/m²
- kozijnen met isolatieglas
- keuken/pantry
- airconditioning verwarmen/koelen
- systeemplafond
HUURCONDITIES
Huurprijs : € 2.250,- per maand excl. BTW
(Huurprijs : € 27.000,- per jaar excl. BTW)
Huurtermijn : in overleg
Huuringangsdatum : in overleg
Huurprijsindexatie : de huurprijs wordt jaarlijks geïndexeerd op basis van het Consumenten Prijsindexcijfer (CPI), reeks Alle huishoudens (2015=100) van het CBS. Voor het eerst een jaar na de huuringangsdatum.
Huurprijsbetaling : per maand vooruit
Servicekosten : De bijdrage servicekosten van de bedrijfsruimte gelegen aan de Industrieweg 4M bedragen € 600,- per jaar excl. BTW als voorschot voor de kosten van:
- onderhoud technische installaties
- onderhoud algehele buitenruimte
- onderhoud overheaddeur
- dak onderhoud.
Huurder dient zelf contracten af te sluiten met de nutsbedrijven inzake de levering van gas, water en elektra.
Diversen : huurder dient zich te confirmeren aan het huishoudelijk reglement en de akte van splitsing
Bankgarantie : gelijk aan 3 maanden huur + 3 maanden servicekosten + BTW
Contract : model door de Raad voor Onroerende Zaken (ROZ) op 5 maart 2025 vastgesteld en het model is tevens gepubliceerd op de website www.roz.nl inclusief aanvullende bepalingen verhuurder. Daarnaast is het huishoudelijk reglement en de akte van splitsing van toepassing.
Voorbehoud : goedkeuring directie verhuurder/ positief bedrijfsinformatierapport; ter beoordeling van verhuurder.
BTW
Verhuurder wenst te opteren voor BTW-belaste huur en verhuur. Ingeval huurder de BTW niet kan verrekenen zal de huurprijs worden verhoogd ter compensatie van de gevolgen van het vervallen van de mogelijkheid om te opteren voor BTW-belaste huur.
Energielabel : A++
Algemeen : de informatie betreffende de bedrijfsruimte aan de Industrieweg 4M te Zoetermeer is met zorg samengesteld. Voor de juistheid daarvan kan door Hopman en Schreuder Bedrijfshuisvesting BV geen aansprakelijkheid worden aanvaard, noch kan aan de vermelde gegevens enig recht worden ontleend. Alle opgegeven oppervlakten en afmetingen zijn indicatief. Deze informatie dient slechts als uitnodiging om in onderhandeling te treden en kan derhalve niet worden beschouwd als een aanbod of offerte. Van toepassing zijn de NVM voorwaarden.
Kenmerken
Overdracht
- Huurprijs
- € 2.250,- p.m. (21% BTW)
- Servicekosten
- € 50,- p.m.
- Status
- beschikbaar
- Aanvaarding
- in overleg
Bouw
- Type
- Bedrijfsruimte
- Soort bouw
- bestaande bouw
- Bouwjaar
- 2021
- Onderhoud binnen
- goed
- Onderhoud buiten
- goed
- Energielabel
- A++
Locatie
- Ligging
- bedrijventerrein
- Snelweg afrit
- < 500 m
- Bushalte
- 1000 m - 1500 m
Bedrijfshal
- Oppervlakte
- 118 m²
- Vloerbelasting
- 1000 kg / m2
- Voorzieningen
- Betonvloer, Overhead deuren, Pantry, Toilet
Kantoorruimte
- Oppervlakte
- 75 m²
- Verdiepingen
- 1
- Voorzieningen
- Inbouwarmaturen, Airco
Parkeren
- Niet overdekt
- 2
Foto's
Plattegronden
Kaart
Reageer op dit object
Heb je interesse in dit object? Vul onderstaand jouw gegevens in en we nemen zo snel mogelijk contact met je op.





















