Willem Dreeslaan 165-167, 2729 NE Zoetermeer
Omschrijving
Te huur / te koop bedrijfsruimte
Willem Dreeslaan 165-167, 2729 NE Zoetermeer
ALGEMEEN
De Willem Dreeslaan 165-167 is gesitueerd aan de bedrijvenstrook van de Willem Dreeslaan, in de wijk Oosterheem, zeer goed bereikbaar vanaf de A12 via de Oostweg (N470). De bedrijvenstrook ligt nabij het centrum van Zoetermeer en is uitstekend ontsloten als toegangsweg naar de wijk Oosterheem. De op- en afritten naar de snelweg liggen op 2 autominuten. Ook met het openbaar vervoer is het terrein goed bereikbaar. Het object komt binnenkort voor verhuur/verkoop beschikbaar. Deze omgeving kenmerkt zich door de goede bereikbaarheid en de ruimtelijke indeling.
KADASTRALE GEGEVENS
Gemeente : Zoetermeer
Sectie : F
Nummer : 3681
Bouwjaar : Omstreeks 2008
BESTEMMING
De bestemming van de Willem Dreeslaan 165-167 is gemengd-1.
Bestemmingsplan : Bedrijventerrein Oosterhage / Businesspark Oosterheem
Planstatus : onherroepelijk (16-08-2013)
Overheid : Gemeente Zoetermeer
Enkelbestemming : gemengd - 1
INDELING EN OPLEVERINGSNIVEAU
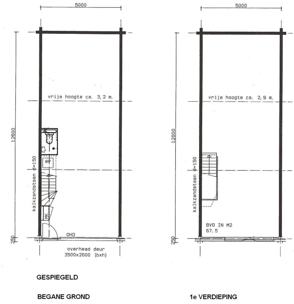
De bedrijfs-/kantoorruimte heeft een oppervlakte van totaal ca. 126 m² en is als volgt ingedeeld:
begane grond : ca. 63 m² b.v.o. bedrijfsruimte
eerste verdieping: ca. 63 m² b.v.o. kantoorruimte
Bij de unit behoren 2 eigen parkeerplaatsen.
Het object wordt opgeleverd met onder andere de volgende voorzieningen:
Bedrijfsruimte
- vloerbelasting 1.000 kg/m²
- elektrische overheaddeur
- vrije hoogte ca 3,2 m¹
- houten trap naar kantoorruimte
- toilet
- heater
- pantry
- verlichtingsarmaturen
Kantoorruimte
- systeemplafond + verlichtingsarmaturen
- kabelgoten langs de buitengevel
- laminaatvloer*
- lichtkoepel
- lamellen*
* eenmalige verstrekking en behoort niet tot het gehuurde.
KOOPSOM & OPLEVERING
Koopsom: € 265.000,- k.k.
Oplevering : in overleg
VvE : € 212,- per maand incl. BTW (2025)
OZB : € 993,- per jaar
HUURCONDITIES
Huurprijs : € 1.550,- per maand excl. BTW
(Huurprijs : € 18.600,- per jaar excl. BTW)
Huurtermijn : in overleg
Huuringangsdatum : in overleg
Huurprijsindexatie : de huurprijs wordt jaarlijks geïndexeerd op basis van het Consumenten Prijsindexcijfer (CPI), reeks Alle huishoudens (2015=100) van het CBS. Voor het eerst een jaar na de huuringangsdatum
Huurprijsbetaling : per maand vooruit
Servicekosten : de servicekosten van de bedrijfsruimte gelegen aan de Willem Dreeslaan 165-167 bedragen € 1.440,- per jaar excl. BTW als voorschot ten behoeve van onder andere:
- jaarlijkse controle en inspectie overheaddeur
- verbruik stadsverwarming
- periodiek onderhoud buitenterrein en groenvoorziening
- 5% administratiekosten.
Bankgarantie : gelijk aan 3 maanden huur + 3 maanden servicekosten + BTW
Contract : Contract : model door de Raad voor Onroerende Zaken (ROZ) op 5 maart 2025 vastgesteld en het model is tevens gepubliceerd op de website www.roz.nl inclusief aanvullende bepalingen verhuurder.
Voorbehoud : goedkeuring directie verhuurder/ positief bedrijfsinformatierapport; ter beoordeling van verhuurder.
BTW
Verhuurder wenst te opteren voor BTW-belaste huur en verhuur. Ingeval huurder de BTW niet kan verrekenen zal de huurprijs worden verhoogd ter compensatie van de gevolgen van het vervallen van de mogelijkheid om te opteren voor BTW-belaste huur.
Energielabel : A
Algemeen : de informatie betreffende de bedrijfsruimte aan de Willem Dreeslaan 165-167 te Zoetermeer is met zorg samengesteld. Voor de juistheid daarvan kan door Hopman en Schreuder Bedrijfshuisvesting BV geen aansprakelijkheid worden aanvaard, noch kan aan de vermelde gegevens enig recht worden ontleend. Alle opgegeven oppervlakten en afmetingen zijn indicatief. Deze informatie dient slechts als uitnodiging om in onderhandeling te treden en kan derhalve niet worden beschouwd als een aanbod of offerte. Van toepassing zijn de NVM voorwaarden.
Kenmerken
Overdracht
- Vraagprijs
- € 265.000,- k.k.
- Huurprijs
- € 1.550,- p.m. (21% BTW)
- Servicekosten
- € 120,- p.m.
- Status
- beschikbaar
- Aanvaarding
- in overleg
Bouw
- Type
- Bedrijfsruimte
- Soort bouw
- bestaande bouw
- Bouwjaar
- na 20012010
- Onderhoud binnen
- goed
- Onderhoud buiten
- goed
- Energielabel
- A
Locatie
- Ligging
- woonwijk
- Snelweg afrit
- 1000 m - 1500 m
- Bushalte
- < 500 m
- Tramhalte
- < 500 m
Bedrijfshal
- Oppervlakte
- 63 m²
- Perceelopp.
- 67 m²
- Vrije hoogte
- 320 cm
- Vloerbelasting
- 1000 kg / m2
- Voorzieningen
- Betonvloer, Heater, Overhead deuren, Pantry, Toilet
Kantoorruimte
- Oppervlakte
- 63 m²
- Verdiepingen
- 1
- Voorzieningen
- Inbouwarmaturen, Te openen ramen
Parkeren
- Niet overdekt
- 2
Foto's
Plattegronden
Kaart
Reageer op dit object
Heb je interesse in dit object? Vul onderstaand jouw gegevens in en we nemen zo snel mogelijk contact met je op.












