Laan van Oversteen 20, 2289 CX Rijswijk
Omschrijving
Te huur kantoorruimte
Laan van Oversteen 20, 2289CX Rijswijk
ALGEMEEN
'Wing Building' is gelegen aan de Laan van Oversteen 20 in het karaktervolle Businesspark Hoornwijck. Door haar unieke ligging is het kantoor aangesloten op één van de belangrijkste verkeersaders van Den Haag en heeft het een directe verbinding met het nationale wegennet A12/A4. In de directe omgeving hebben gerenommeerde bedrijven als BDO, Staatsloterij, BMW en Florence zich gevestigd.
Het centrum Oud Rijswijk bevindt zich op enige afstand, waar uitgebreide winkelmogelijkheden en een diversiteit aan restaurants aanwezig zijn.
Het Businesspark grenst aan de rijkswegen A4 en A13 en ligt zeer nabij verkeersplein Ypenburg en het Prins Clausplein. Het snelwegennet ontvouwt zich letterlijk voor uw deur. Buslijn 15 stopt voor de deur en verbindt Den Haag Ypenburg met Nootdorp. Deze buslijn stopt zowel op NS-station Den Haag Centraal als op Den Haag Hollands Spoor.
INDELING + OPLEVERINGSNIVEAU
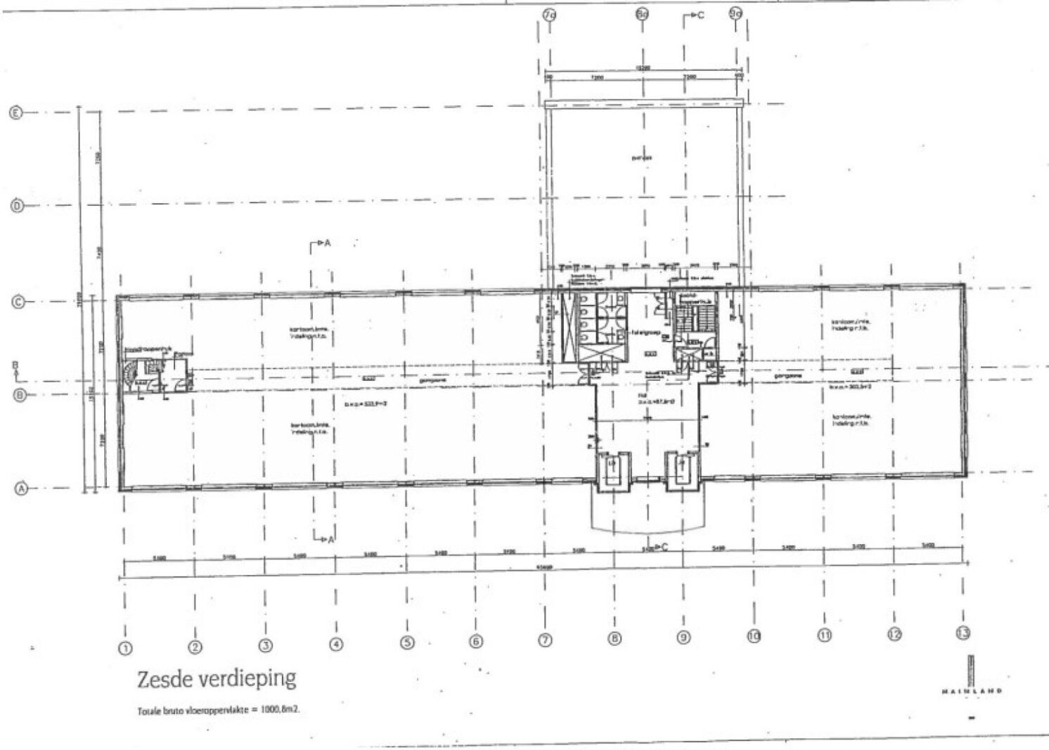
De totaal verhuurbare vloeroppervlakte aan de Laan van Oversteen 20 van 'Wing Building' is circa 7.482 m² vvo kantoorruimte, verdeeld over 8 bouwlagen.
Momenteel is het volgende beschikbaar:
6e etage lange vleugel : 574 m²
De oppervlakte is inclusief aandeel algemene ruimte.
Er is ruim voldoende parkeergelegenheid op eigen terrein, alsmede diverse mogelijkheden in de directe omgeving.
De kantoorruimte wordt opgeleverd in huidige staat en is voorzien van onder andere:
- representatieve entree
- 2 panoramaliften
- centrale verwarmingsinstallatie per ruimte regelbaar
- mechanische ventilatie
- luchtbehandeling systeem voorzien van topkoeling
- systeemplafond met inbouw TL-armaturen
- kabelgoten (incl. bekabeling) t.b.v. data, telefoon en elektra
- toiletgroepen per verdieping (gescheiden dames- en herentoilet
- pantry per verdieping
- te openen ramen, voorzien van dubbel glas
- brandmeldinstallatie
- serverruimte per verdieping.
HUURCONDITIES
Huurprijs kantoorruimte : € 100,- per m² per jaar excl. BTW
Huurprijs parkeerplaats : € 750,- per plaats per jaar excl. BTW
Huurtermijn : in overleg
Huuringangsdatum : in overleg
Huurprijsindexatie : de huurprijs wordt jaarlijks geïndexeerd op basis van het Consumenten Prijsindexcijfer (CPI), reeks Alle huishoudens (2015=100) van het CBS. Voor het eerst een jaar na de huuringangsdatum
Huurbetaling : per maand vooruit
Servicekosten: de vaste service- en energiekosten van de Laan van Oversteen 20 bedragen € 45,- per m² per jaar excl. BTW. De service- en energiekosten worden middels een vast bedrag verrekend ('fixed fee')
Bankgarantie : 3 maanden huur + servicekosten + BTW
Contract : model door de Raad voor Onroerende Zaken (ROZ) op 5 maart 2025 vastgesteld en het model is tevens gepubliceerd op de website www.roz.nl inclusief aanvullende bepalingen verhuurder.
Voorbehoud : goedkeuring directie verhuurder/ positief bedrijfsinformatierapport; ter beoordeling van verhuurder.
BTW
Verhuurder wenst te opteren voor BTW-belaste huur en verhuur. Ingeval huurder de BTW niet kan verrekenen zal de huurprijs worden verhoogd ter compensatie van de gevolgen van het vervallen van de mogelijkheid om te opteren voor BTW-belaste huur.
Energielabel : A
Algemeen : de informatie betreffende de kantoorruimte aan de Laan van Oversteen 20 te Rijswijk is met zorg samengesteld. Voor de juistheid daarvan kan door Hopman en Schreuder Bedrijfshuisvesting BV geen aansprakelijkheid worden aanvaard, noch kan aan de vermelde gegevens enig recht worden ontleend. Alle opgegeven oppervlakten en afmetingen zijn indicatief. Deze informatie dient slechts als uitnodiging om in onderhandeling te treden en kan derhalve niet worden beschouwd als een aanbod of offerte. Van toepassing zijn de NVM voorwaarden
Kenmerken
Overdracht
- Huurprijs
- € 4.783,- p.m. (21% BTW)
- Servicekosten
- € 45,- per vierkante meter p.j.
- Status
- beschikbaar
- Aanvaarding
- in overleg
Bouw
- Type
- Kantoorruimte
- Soort bouw
- bestaande bouw
- Bouwjaar
- na 20012010
- Onderhoud binnen
- goed
- Onderhoud buiten
- goed
- Energielabel
- A
Locatie
- Ligging
- bedrijventerrein
- Snelweg afrit
- 2000 m - 3000 m
- Bushalte
- 500 m - 1000 m
Kantoorruimte
- Oppervlakte
- 574 m²
- Verdiepingen
- 6
- Voorzieningen
- Inbouwarmaturen, Kabelgoten, Liften, Systeemplafond, Te openen ramen, Toilet, Verwarming, Mechanische ventilatie, Topkoeling
- In units vanaf
- 574
- Turn key
- nee
Foto's
Plattegronden
Kaart
Reageer op dit object
Heb je interesse in dit object? Vul onderstaand jouw gegevens in en we nemen zo snel mogelijk contact met je op.














