Van der Waalsstraat 44L, 2721 KX Zoetermeer
Omschrijving
Te huur bedrijfsruimte
Van der Waalsstraat 44L, 2721 KX Zoetermeer
ALGEMEEN
Aan de Van der Waalsstraat, aan de rand van de woonwijk Oosterheem te Zoetermeer, is onlangs dit representatieve bedrijfspand opgeleverd. Het bedrijfspand is onderdeel van een project van twee geschakelde panden aan de voorzijde en 6 bedrijfsunits aan de achterzijde. Op korte termijn komt de Van der Waalsstraat 44L voor verhuur beschikbaar.
Oosterhage is gesitueerd noordelijk van het Prismaterrein (Bleiswijk), aan de rand van de woonwijk Oosterheem in Zoetermeer en is eenvoudig bereikbaar vanaf Rijksweg A12 via de N209 en de verlengde Australiëweg (ringweg door Zoetermeer). Via de N470/471 zijn ook snelwegen A13 en A20 snel bereikbaar.
Op het bedrijventerrein Oosterhage zijn o.a. de volgende bedrijven gevestigd: Dräger Nederland B.V., NBD Biblion en Fortune Coffee.
KADASTRALE GEGEVENS
Gemeente : Zegwaard
Sectie : F
Nummer : 5943 A6
Bouwjaar: 2024
BESTEMMING
De bestemming van Van der Waalsstraat 44L is 'bedrijventerrein'.
Bestemmingsplan : Bedrijventerrein Oosterhage / Businesspark Oosterheem
Planstatus : onherroepelijk (vastgesteld 16-08-2013)
Overheid : gemeente Zoetermeer
Enkelbestemming : bedrijventerrein
Categorie : bedrijven t/m categorie 3.1 (afwijkbevoegdheid van het bevoegd gezag t/m categorie 4.1)
Maatvoering : maximum bouwhoogte 15 m
INDELING + OPLEVERINGSNIVEAU
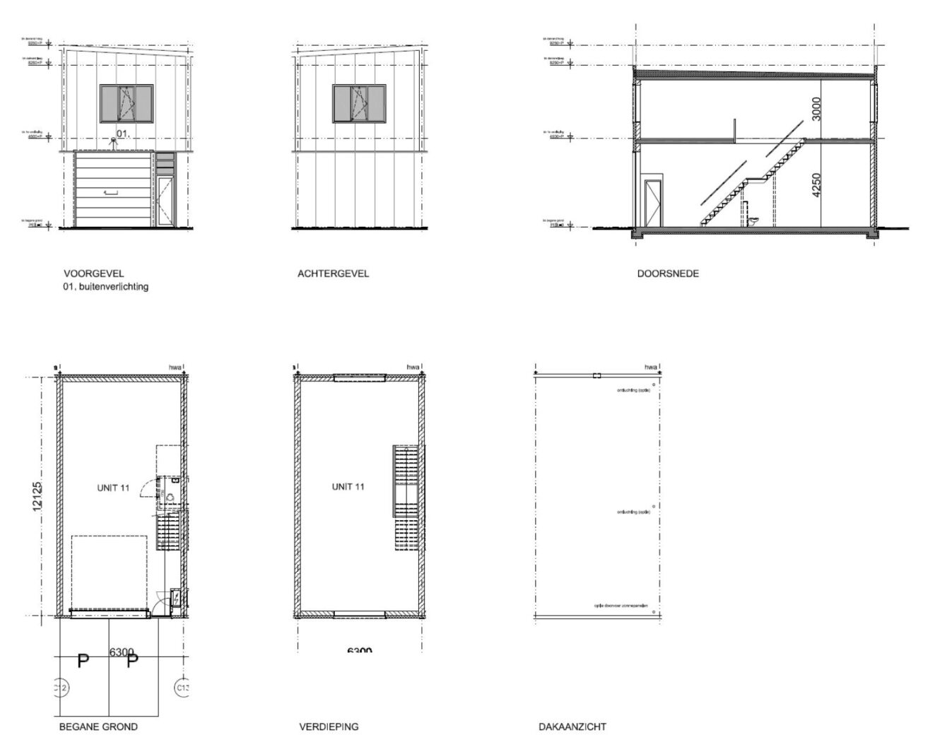
De Van der Waalsstraat 44L beschikt over twee bouwlagen, als volgt ingedeeld:
- begane grond : ca. 78 m² bvo bedrijfsruimte
- eerste verdieping : ca. 78 m² bvo, welke thans is ingericht als kantoor.
Het pand beschikt over 2 eigen parkeerplaatsen.
Het object wordt opgeleverd met onder andere de volgende voorzieningen:
Begane grond
- betonvloer
- vloerbelasting 1.000 kg/m²
- toilet
- elektrische overheaddeur
- meterkast met 12 groepen 230V 16A, 1 hoofdschakelaar, 3 aardlekschakelaars (aansluiting 3 fase mogelijkheid krachtstroom)
Verdieping
- aluminium kozijnen
- HR ++ beglazing
- pantry
- verlaagd plafond met LED-verlichting
- loze leidingen voor het trekken van databekabeling
- airco voor verwarming en koelen
- gestuukte wanden (lichtgrijs geschilderd)
- vloerafwerking middels laminaat
HUURCONDITIES
Huurprijs : € 1.795,- per maand excl. BTW
(Huurprijs : € 21.540,- per jaar excl. BTW)
Huurtermijn : in overleg
Huuringangsdatum : in overleg
Huurprijsindexatie : de huurprijs wordt jaarlijks geïndexeerd op basis van het Consumenten Prijsindexcijfer (CPI), reeks Alle huishoudens (2015=100) van het CBS. Voor het eerst een jaar na de huuringangsdatum
Huurprijsbetaling : per maand vooruit
Servicekosten : de servicekosten van de bedrijfsruimte gelegen aan de Van der Waalsstraat 44L bedragen € 600,- per jaar excl. BTW als voorschot voor de kosten van:
- Onderhoud airco
- Onderhoud overheaddeur
- Onderhoud toegangspoorten
- Onderhoud en schoonhouden terrein
- Schoonhouden dak
- 5% administratiekosten.
Huurder dient zelf contracten af te sluiten met de nutsbedrijven inzake de levering van water en elektra.
Bankgarantie : gelijk aan 3 maanden huur + 3 maanden servicekosten + BTW
Diversen : huurder dient zich te confirmeren aan het huishoudelijk reglement en de akte van splitsing
Contract : model door de Raad voor Onroerende Zaken (ROZ) op 5 maart 2025 vastgesteld en het model is tevens gepubliceerd op de website www.roz.nl inclusief aanvullende bepalingen verhuurder. Daarnaast is het huishoudelijk reglement en de akte van splitsing van toepassing.
Voorbehoud : goedkeuring directie verhuurder/ positief bedrijfsinformatierapport; ter beoordeling van verhuurder.
BTW
Verhuurder wenst te opteren voor BTW-belaste huur en verhuur. Ingeval huurder de BTW niet kan verrekenen zal de huurprijs worden verhoogd ter compensatie van de gevolgen van het vervallen van de mogelijkheid om te opteren voor BTW-belaste huur.
Energielabel : A++
Algemeen : de informatie betreffende de bedrijfsruimte aan de Van der Waalsstraat 44L te Zoetermeer is met zorg samengesteld. Voor de juistheid daarvan kan door Hopman en Schreuder Bedrijfshuisvesting BV geen aansprakelijkheid worden aanvaard, noch kan aan de vermelde gegevens enig recht worden ontleend. Alle opgegeven oppervlakten en afmetingen zijn indicatief. Deze informatie dient slechts als uitnodiging om in onderhandeling te treden en kan derhalve niet worden beschouwd als een aanbod of offerte. Van toepassing zijn de NVM voorwaarden.
Kenmerken
Overdracht
- Huurprijs
- € 1.795,- p.m. (21% BTW)
- Servicekosten
- € 50,- p.m.
- Status
- beschikbaar
- Aanvaarding
- in overleg
Bouw
- Type
- Bedrijfsruimte
- Soort bouw
- bestaande bouw
- Bouwjaar
- 2024
- Onderhoud binnen
- goed
- Onderhoud buiten
- goed
- Energielabel
- A++
Locatie
- Ligging
- bedrijventerrein
- Snelweg afrit
- 1000 m - 1500 m
- Bus knooppunt
- < 500 m
- Bushalte
- < 500 m
Bedrijfshal
- Oppervlakte
- 78 m²
- Vrije hoogte
- 425 cm
- Vloerbelasting
- 1000 kg / m2
- Voorzieningen
- Betonvloer, Overhead deuren, Pantry, Toilet
Kantoorruimte
- Oppervlakte
- 78 m²
- Verdiepingen
- 1
- Voorzieningen
- Airco
Parkeren
- Niet overdekt
- 2
Foto's
Plattegronden
Kaart
Reageer op dit object
Heb je interesse in dit object? Vul onderstaand jouw gegevens in en we nemen zo snel mogelijk contact met je op.














