Van der Waalsstraat 44G, 2721 KX Zoetermeer
Omschrijving
Te huur kantoorruimte
Van der Waalsstraat 44G, 2721 KX Zoetermeer
ALGEMEEN
De Van der Waalsstraat 44G is gelegen op het bedrijventerrein Oosterhage te Zoetermeer, aan de rand van de woonwijk Oosterheem. Het project, waar deze unit deel vanuit maakt, bestaat uit 4 geschakelde panden aan de voorzijde en 7 bedrijfsunits aan de achterzijde. Door de hoge stedenbouwkundige eisen heeft het geheel een uiterst representatieve uitstraling. De begane grond betreft bedrijfsruimte en de verdieping kantoor.
Per direct is deze ruimte beschikbaar!
De van der Waalsstraat 44G is gesitueerd noordelijk van het Prismaterrein (Bleiswijk), aan de rand van de woonwijk Oosterheem in Zoetermeer en is eenvoudig bereikbaar vanaf Rijksweg A12 via de N209 en de verlengde Australiëweg (ringweg door Zoetermeer). Via de N470/471 zijn ook snelwegen A13 en A20 snel bereikbaar. Op het bedrijventerrein Oosterhage zijn o.a. de volgende bedrijven gevestigd: Dräger Nederland B.V., NBD Biblion en Fortune Coffee.
KADASTRALE GEGEVENS
Gemeente : Zegwaard
Sectie : F
Nummer : 5951
Bouwjaar: 2024
BESTEMMING
De bestemming van de van der Waalsstraat 44G is "Bedrijventerrein"
Bestemmingsplan : Oosterhage / Businesspark Oosterheem
Planstatus : onherroepelijk (16-08-2013)
Overheid: gemeente Zoetermeer
Enkelbestemming : bedrijventerrein
Maatvoering : maximum bouwhoogte 15 m
INDELING + OPLEVERINGSNIVEAU
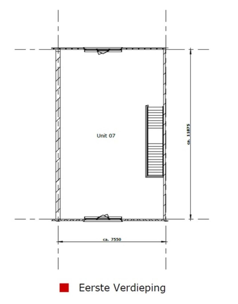
De Van der Waalsstraat 44G beschikt over twee bouwlagen, waarvan de eerste verdieping voor verhuur beschikbaar komt:
- eerste verdieping : 91 m² bedrijfsruimte, welke thans is ingericht als kantoor.
Bij het gehuurde behoort 1 parkeerplaats. Gebruik van een tweede parkeerplaats is in overleg bespreekbaar.
Het object wordt opgeleverd met onder andere de volgende voorzieningen:
Verdieping
- betonvloer met 400 kg/m² vloerbelasting
- glad afgewerkte wanden
- gespoten plafond
- reversibel airco (koelen/verwarmen)
- representatief afgewerkte vloer middels PVC
- luxe pantry
- toilet
- diversen wandcontactdozen
HUURCONDITIES
Huurprijs : € 1.050,- per maand excl. BTW
(Huurprijs : € 12.600,- per jaar excl. BTW)
Huurtermijn : in overleg
Huuringangsdatum : in overleg
Huurprijsindexatie : de huurprijs wordt jaarlijks geïndexeerd op basis van het Consumenten Prijsindexcijfer (CPI), reeks Alle huishoudens (2015=100) van het CBS. Voor het eerst een jaar na de huuringangsdatum
Huurprijsbetaling : per maand vooruit
Servicekosten : de servicekosten van de Van der Waalsstraat 44G bedragen € 1.800,- per jaar excl. BTW als voorschot voor de kosten van:
- levering van elektriciteit en water (verrekend middels tussenmeter);
- jaarlijkse inspectie en onderhoud technische installaties
- bijdrage VvE.
Bankgarantie : gelijk aan 3 maanden huur + 3 maanden servicekosten + BTW
Contract : model door de Raad voor Onroerende Zaken (ROZ) op 5 maart 2025 vastgesteld en het model is tevens gepubliceerd op de website www.roz.nl inclusief aanvullende bepalingen verhuurder. Daarnaast is het huishoudelijk reglement en de akte van splitsing van toepassing.
Voorbehoud : goedkeuring directie verhuurder/ positief bedrijfsinformatierapport; ter beoordeling van verhuurder.
BTW
Verhuurder wenst te opteren voor BTW-belaste huur en verhuur. Ingeval huurder de BTW niet kan verrekenen zal de huurprijs worden verhoogd ter compensatie van de gevolgen van het vervallen van de mogelijkheid om te opteren voor BTW-belaste huur.
Energielabel : A+++
Algemeen : de informatie betreffende de kantoorruimte aan de Van der Waalsstraat 44G te Zoetermeer is met zorg samengesteld. Voor de juistheid daarvan kan door Hopman en Schreuder Bedrijfshuisvesting BV geen aansprakelijkheid worden aanvaard, noch kan aan de vermelde gegevens enig recht worden ontleend. Alle opgegeven oppervlakten en afmetingen zijn indicatief. Deze informatie dient slechts als uitnodiging om in onderhandeling te treden en kan derhalve niet worden beschouwd als een aanbod of offerte. Van toepassing zijn de NVM voorwaarden.
Kenmerken
Overdracht
- Huurprijs
- € 1.050,- p.m. (21% BTW)
- Servicekosten
- € 150,- p.m.
- Status
- beschikbaar
- Aanvaarding
- in overleg
Bouw
- Type
- Kantoorruimte
- Soort bouw
- bestaande bouw
- Bouwjaar
- 2024
- Onderhoud binnen
- goed
- Onderhoud buiten
- goed
- Energielabel
- A+++
Locatie
- Ligging
- bedrijventerrein
- Snelweg afrit
- 1000 m - 1500 m
- Bus knooppunt
- < 500 m
- Bushalte
- < 500 m
Kantoorruimte
- Oppervlakte
- 91 m²
- Verdiepingen
- 91
- Voorzieningen
- Pantry, Toilet, Airco
- In units vanaf
- 91
- Turn key
- nee
Parkeren
- Niet overdekt
- 1
Foto's
Plattegronden
Kaart
Reageer op dit object
Heb je interesse in dit object? Vul onderstaand jouw gegevens in en we nemen zo snel mogelijk contact met je op.








